
GZG電機振動給料機產品概述:
電機振動給料機是我公司工程技術人員精主研制成功的新型給料設備它可以和重型振動篩形成生產線,它廣泛應用于礦山、冶金、煤炭、建材、化工、電力、糧食等行業,用于把塊狀、顆粒狀及粉狀物料從貯料倉或其它貯料設備中均勻、連續或定量地給到受料設備中,適應于自動配料、定量包裝和自動控制。電機振動給料機體積小、噪音低、重量輕、耗電少、安裝維修方便。
GZG電機振動給料機主要特點:
電機振動給料機在使用過程中,可以調節激振力來改變和控制流量,因而調節方便,流量穩定,噪音低,耗電小,無沖料現象,同時本機具有重量輕,體積小,保養方便等特點,電機振動給料機也可采用封閉式結構,可防止粉塵外溢及環境污染。
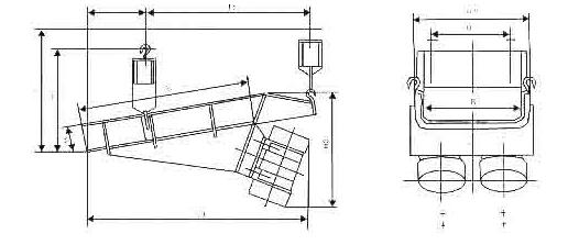
GZG電機振動給料機安裝示意圖

